string(4) "1021"

БВПУ-10 в Грозном

Версия
для печати
Товар отсутствуетИзготовление под заказ! Цена по запросу.
Получите скидку
у менеджера
Цена на бВПУ-10 с доставкой от 0 рублей с НДС
Доставка ТК в г. Грозный и по России
Безналичный расчет
  • Технические
    характеристики
  • Описание
    товара
  • Отзывы о
    продукции

Технические характеристики в Грозном

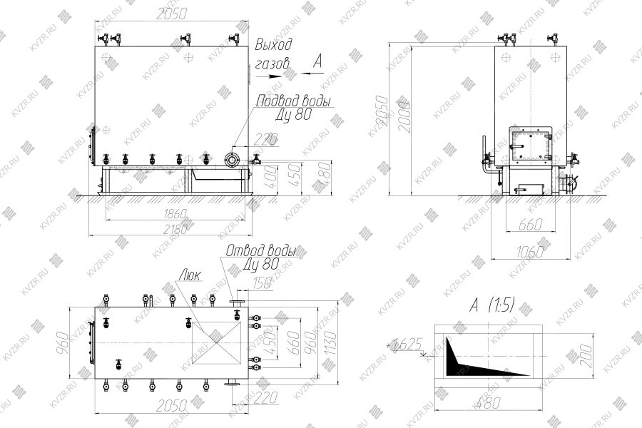
Производительность, м³/ч 10
Масса, кг 3905
Марка БВПУ 10
Тип Катионитный

БВПУ 10,0

Основной задачей БВПУ 10,0 является очистка природных вод получаемых из поверхностных и подземных источников. Блочная водоподготовительная установка БВПУ 10,0 создана для осветления, обесцвечивания, обезжелезивания, обессоливания, поправления минерального состава и обеззараживания воды, то есть доведение её до нормативных требований. Блочная водоподготовительная установка используется в автономных и централизованных системах водоснабжения, таких как предприятия газовой, нефтяной, пищевой и прочих промышленностей, объекты ЖКХ, воинские части, энергетические комплексы и прочее.

Блочная установка обладает рядом преимуществ:

  • Качественная очистка воды, учитывая ее возможное изменение состава;
  • Кратчайшие сроки монтажных работ;
  • Продолжительный срок эксплуатации;
  • Конструкция БВПУ 10,0 выполнена таким образом, что позволяет проводить модернизацию установки с минимальными затратами.
  1. Фильтр натрий-катионитный Ду 700 (2 шт.).
  2. Фильтр осветлительный Ду 1000.
  3. Теплообменник водоводяной производительностью Q=5...10 т/ч.
  4. Склады и мерники реагентов.
  5. Агрегат электронасосный (Насос) - ВК5/24А-У3.1-2 шт.
  6. Рама сварная.
  7. Щит управления.

Купить БВПУ 10,0

Для того чтобы купить БВПУ 10,0, вы можете оформить заявку в отделе сбыта по телефону (38-52) 29-97-41 (42), либо оформить заявку онлайн. Наши менеджеры дадут консультацию по подбору вспомогательного оборудования для выбранных вами моделей и рассчитают стоимость доставки до вашего региона и населенного пункта. Также предлагаем вам выполнить проект реконструкции котельной.

Дополнительные услуги

Отзывы о продукции

Отзыва о товаре пока нет, будьте первыми!

Вопрос-ответ

  • Технические
    характеристики
  • Описание
    товара
  • Отзывы о
    продукции
Документы завода
  • Сертификаты завода
  • Членство в СРО
  • Аттестованная технология сварки
  • Патенты на котельное оборудование
  • Товарные знаки
Смотреть все документы
Сертификат на водогрейные котлы на твердом и жидком топливе
Сертификат на водогрейные котлы на газе и жидком топливе
Сертификат на котлы отопительные паровые КП
Сертификат на топки
Сертификат на щиты управления
Сертификат на скиповые подъемники
Сертификат на золоуловители (циклоны)
Сертификат на конвейеры скребковые
Сертификат на дробилки
Сертификат на клапаны предохранительные
Сертификат на бункер-накопитель механизированный
Сертификат на автоматику газовых горелок
Сертификат о происхождении товара форма СТ-1
Членство в СРО
Членство в СРО
Аттестованная технология сварки
Свидетельство аттестованной технологии сварки
Патент на отопительный котел
Патент на водогрейный котел
Патент на топку водогрейного котла
Патент на водогрейный газовый котел
Патент на водогрейный котел
Патент на топочное устройство твердотопливного котла
Патент на водогрейный котел
HEATEXPERT товарный знак
KVZR товарный знак
STEAMEXPERT товарный знак
Другая похожая продукция
Цена по запросу
Цена по запросу
Цена по запросу
Цена по запросу
Вы просматривали эти товары
Цена по запросу
26 000 р. Цена с НДС
Батарейный циклон БЦ 259
Производительность циклона, м³/с8.88
ПрименяемостьПаропроизводительность 15.0 т/ч
Цена по запросу
Котел на опилках
Лизинг
Вид топкиВихревая, Автоматическая
Максимальная тепловая мощность, МВт0.3
ТопливоОпилки
Отапливаемая площадь, м²2300-3300
1 398 000 р. Цена с НДС
background